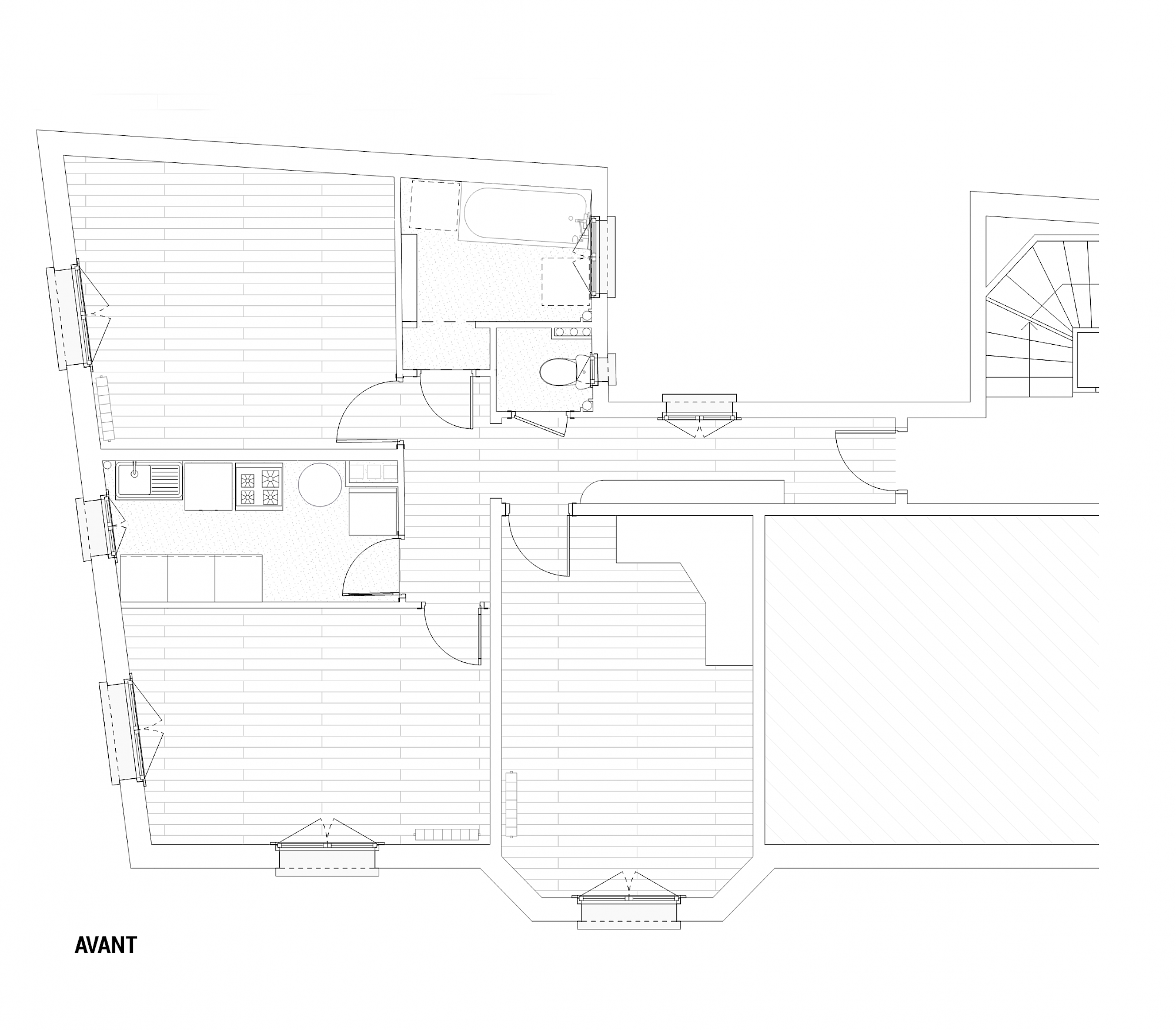
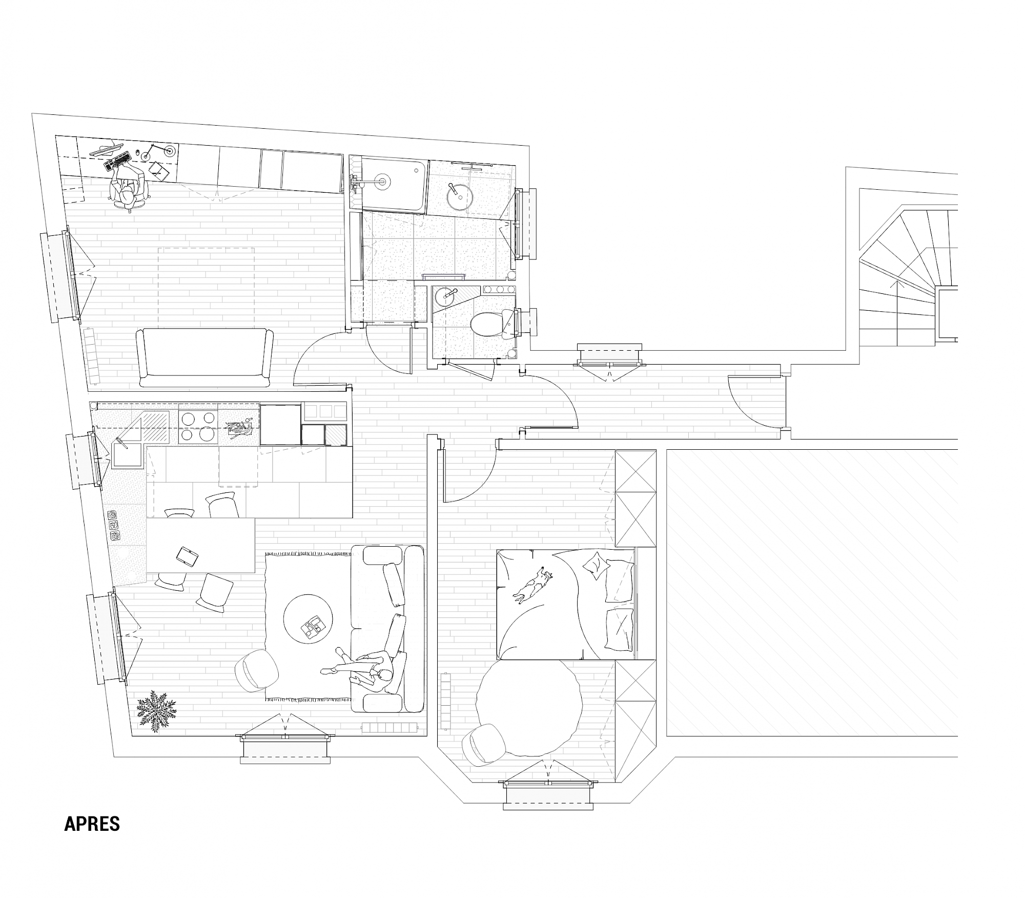
Vermenouze

  • Année
    2020
  • Ville
    Paris 5e
  • Programme
    Rénovation complète d’un appartement
  • Superficie
    60 m²
  • Maîtrise d’ouvrage
    Privé
  • Mission
    Complète
  • Avancement
    Livré
  • Crédit images
    Rémi Deprez
  • À propos
    Rénovation complète d’un appartement, création d’un grand séjour-cuisine, création d’une bibliothèque-bureau sur mesure, création d’une tête de lit-armoire en réemploi de l’ancien mobilier, douche et mobilier de salle d’eau sur mesure.